Zu Vermieten €420 - Etagenwohnung
Objektbeschreibung
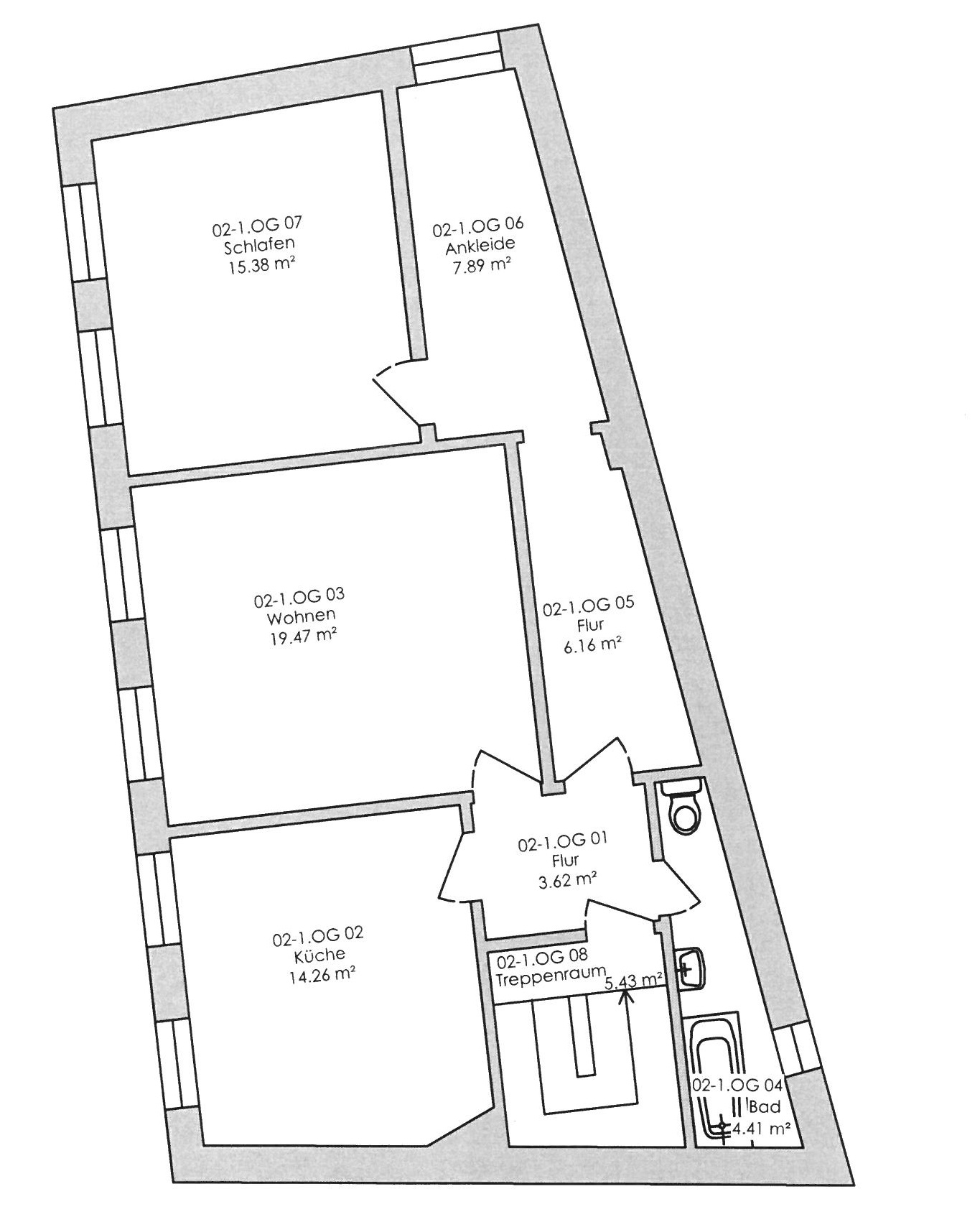
Die Wohnung verfügt über eine Fläche von ca. 70 m² und ist aufgeteilt in eine großzügige Küche, Wohnzimmer, Schlafzimmer und einem kleinen Durchgangszimmer, das als Arbeitszimmer genutzt werden kann. Der Holzboden sorgt für eine wohnliche Atmosphäre. Das Tageslichbad verfügt über eine Badewanne. Die Wohnung wird über eine Gas-Etagenheizung beheizt
Lage
Die Wohnung befindet sich in zentraler Innenstadtlage von Werl. Einrichtungen des täglichen Bedarfs wie Einkaufsmöglichkeiten, Ärzte und Gastronomie befinden sich in unmittelbarer Nähe. Der Bahnhof liegt ca. 800 m entfernt. Bis zu den Autobahnen A44 (Kassel – Ruhrgebiet) und A445 (Werl – Bestwig) sind es ca. 2,5 km Fahrtstrecke.
Sonstiges
Wir bitten sich bei Interesse mit einer s c h r i f t l i c h e n Anfrage über unsere Homepage oder das Internetportal an uns zu wenden. Bitte beachten Sie, dass nur vollständige ausgefüllte Kontaktanfragen bearbeitet werden können (Name, Anschrift und Rufnummer). Wir senden Ihnen dann umgehend ein Exposé per E-Mail zu.
Weitere Details
- Zimmer insgesamt: 2
- Heizungsart: Etagenheizung
- Etage: 1
- Kaltmiete: 420 €
- monatl. Betriebs-/Nebenkosten: 120 €
- Kaution: 840 €
- Wohneinheiten: 3
- Befeuerung: Gas
- Baujahr: 1910
- Zustand: gepflegt
- Immobilie ist verfügbar ab: 01.05.2026

