Zu Verkaufen €299.000 - Zweifamilienhaus
Objektbeschreibung
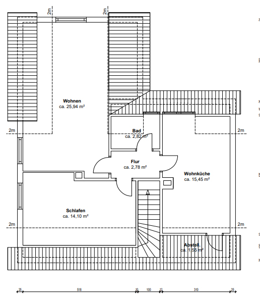
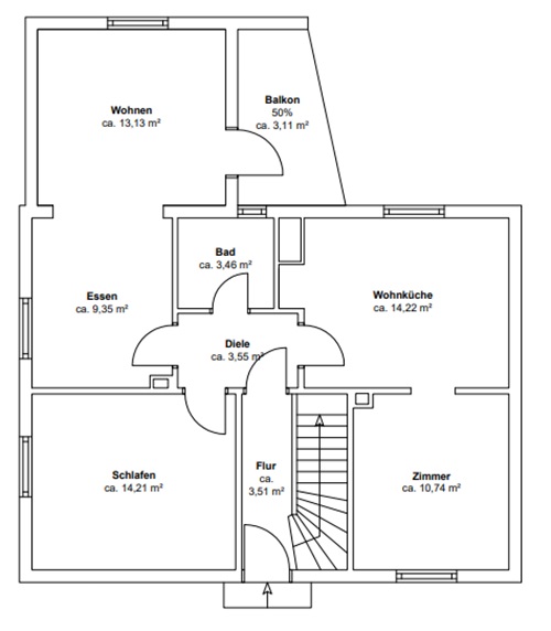
Willkommen in Ihrem neuen Zuhause einem charmanten Einfamilienhaus, das 1954 erbaut wurde und in einer ruhigen, idyllischen Nachbarschaft liegt. Mit einer großzügigen Wohnfläche von 136 m² bietet dieses geräumige Haus ausreichend Platz für die ganze Familie. Das Haus befindet sich auf einem weitläufigen Grundstück von 841 m², das Ihnen viel Platz für Gartenarbeit und Outdoor-Aktivitäten bietet. Der Innenbereich des Hauses überzeugt durch eine durchdachte Raumaufteilung und viel Tageslicht. Die großzügigen Zimmer ermöglichen individuelle Gestaltungsmöglichkeiten und schaffen eine einladende Atmosphäre. Der Keller bietet zusätzlichen Stauraum und kann nach Belieben als Hobbyraum oder Werkstatt genutzt werden. Das Haus wartet darauf, von Ihnen mit Leben erfüllt zu werden. Die beiden Garagen bieten Platz für Ihre Fahrzeuge. Des Weiteren steht Ihnen im Garten ein Raum für Fahrräder und Gartengeräte zur Verfügung. Nutzen Sie die Chance, dieses einzigartige Haus zu Ihrem neuen Zuhause zu machen und gestalten Sie es ganz nach Ihren Vorstellungen. Hier wohnen Sie in einer harmonischen Umgebung, die sowohl Ruhe als auch Nähe zu allen wichtigen Annehmlichkeiten des Lebens bietet. Lassen Sie Ihrer Kreativität freien Lauf und genießen Sie das Leben in diesem bezaubernden Zuhause!
Lage
Fröndenberg ist eine Stadt im Bundesland Nordrhein-Westfalen, Deutschland. Geografisch liegt Fröndenberg im Märkischen Kreis und grenzt an die Städte Unna, Menden und Iserlohn. Die Verkehrsanbindung ist gut, da Fröndenberg über die Autobahn A1 sowie über verschiedene Bundesstraßen erreichbar ist. Der Bahnhof Fröndenberg bietet zudem Anschluss an das regionale Schienennetz, was Pendlern die Anreise in nahegelegene Städte wie Dortmund oder Hagen erleichtert. Fröndenberg hat eine Bevölkerung von etwa 30.000 Einwohnern und bietet eine Vielzahl von Einrichtungen und Dienstleistungen, darunter Schulen, Einkaufsmöglichkeiten und Freizeitaktivitäten. Insgesamt zeichnet sich Fröndenberg durch eine hohe Lebensqualität aus, die durch die Kombination aus naturnaher Lage, guter Infrastruktur und einem breiten Angebot an Freizeitmöglichkeiten unterstützt wird.
Sonstiges
Wohnfläche Angabe gemäß neuer Wohnflächenberechnung.
Baujahre
Elektroleitungen: 2023
Wasserleitungen: unbekannt
Fenster: 1979, 1980
Dach: unbekannt
Grundbesitzabgaben gebäudeabhängig von 2025
Grundsteuer B: 545,45 Euro pro Jahr
Straßenreinigung: 34,51 Euro pro Jahr
Niederschlagswasser: 196,42 Euro pro Jahr
Weitere Details
- Grundstücksfläche: 841 m²
- Zimmer insgesamt: 6
- Anzahl Stellplätze: 3
- Heizungsart: Zentralheizung
- Anzahl Etagen: 2,0
- Kaufpreis: 299.000 €
- Courtage: 3.57 %
- Anzahl Außenstellplätze: 1
- Anzahl Garagenstellplätze: 2
- Nutzfläche: 85 m²
- Balkone: 1
- Terrassen: 1
- Wohneinheiten: 1
- Art der Ausstattung: Standard
- Befeuerung: Öl
- Baujahr: 1953
- Zustand: gepflegt
- Letzte Modernisierung: 2023
- Immobilie ist verfügbar ab: nach Absprache
















