Zu Verkaufen €465.000 - Zweifamilienhaus
Objektbeschreibung
Dieses gepflegte 2- bis 3-Parteienhaus befindet sich in einer ruhigen, zugleich zentral gelegenen Wohngegend von Troisdorf-Spich. Das Gebäude wurde 1965 als Zweifamilienhaus errichtet und 1978 aufgestockt. Es verfügt über drei Etagen mit einer Gesamtwohnfläche von rund 205 m². Die Grundrisse sind großzügig und praktisch angelegt, die Räume hell und freundlich gestaltet.
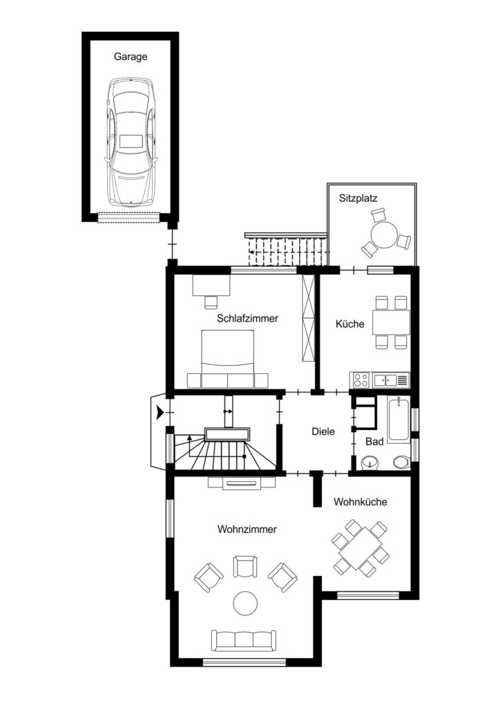
Im Erdgeschoss befindet sich eine derzeit leerstehende 3-Zimmer-Wohnung mit ca. 88 m² Wohnfläche. Sie bietet neben einem praktischen Einbauspind eine Terrasse, die direkt in den Garten führt, und eignet sich sowohl zur Eigennutzung als auch zur Vermietung.
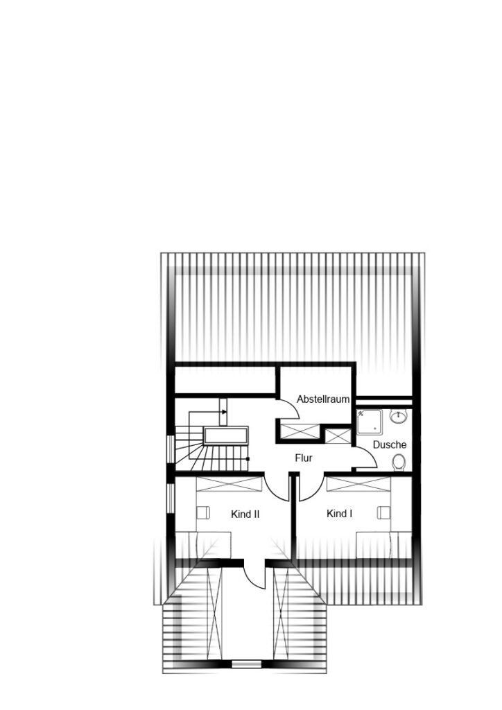
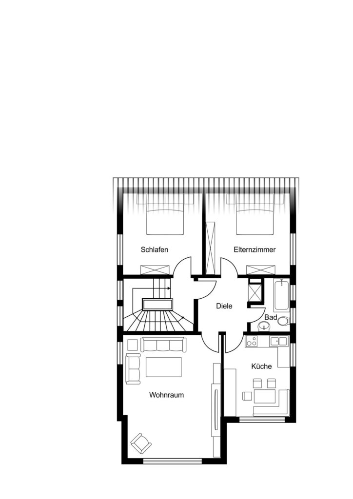
Die zweite Wohneinheit erstreckt sich über das Obergeschoss und das Dachgeschoss und umfasst ca. 117 m², welche sich auf 5 Zimmer verteilen. Die Räume des Dachgeschosses sind separat über das Treppenhaus zugänglich, wobei die Fläche im Obergeschoss ca. 82 m² umfasst und die im Dachgeschoss ca. 35 m².
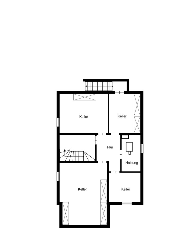
Das Gebäude ist voll unterkellert und bietet neben einer Waschküche und dem Heizungsraum mehrere Abstellräume. Hervorzuheben ist außerdem ein großzügiger Bereich, der früher als Partykeller genutzt wurde.
Das 407 m² große Grundstück ist vollständig eingefriedet und eröffnet verschiedene Nutzungsmöglichkeiten. Zwei Garagen sowie zusätzliche Stellplätze vor dem Haus stehen zur Verfügung. Der Gartenbereich ist über die Terrasse der Erdgeschosswohnung, eine Seitentüre oder direkt über eine der Garagen zugänglich.
Lage
Das Objekt befindet sich im Troisdorfer Stadtteil Spich. Die Straße ist eine ruhige Anliegerstraße mit überwiegend wohnlicher Prägung sowie vereinzelten kleineren Gewerbebetrieben und Dienstleistern.
Einrichtungen des täglichen Bedarfs wie Einkaufsmöglichkeiten, Arztpraxen und Apotheken sind in der näheren Umgebung vorhanden und teilweise fußläufig erreichbar. Die Anbindung an den öffentlichen Nahverkehr ist durch den Bahnhof Spich sowie mehrere Bushaltestellen gewährleistet. Mit dem Pkw besteht über die nahegelegene A59 eine schnelle Verbindung in Richtung Köln und Bonn. Grünflächen und Freizeitmöglichkeiten in der Umgebung tragen zusätzlich zu einer guten Wohn- und Lebensqualität bei.
Ausstattung
– großzügiger Gartenbereich
– voll unterkellert
– große Fensterfronten
– Garagen + Stellplätze
– Tageslichtfenster in alles Badezimmern
– Waschkeller
Weitere Details
- Grundstücksfläche: 407 m²
- Zimmer insgesamt: 7
- Anzahl Stellplätze: 5
- Anzahl Etagen: 2,0
- Kaufpreis: 465.000 €
- Courtage: 3,57 % inkl. MwSt.
- Anzahl Außenstellplätze: 3
- Anzahl Garagenstellplätze: 2
- Nutzfläche: 88,02 m²
- Balkone: 1
- Terrassen: 1
- Art der Ausstattung: Standard
- Befeuerung: Öl
- Baujahr: 1965
- Zustand: renovierungsbedürftig
- Immobilie ist verfügbar ab: nach Vereinbarung




















