Zu Verkaufen €219.000 - DG-Wohnung
Objektbeschreibung
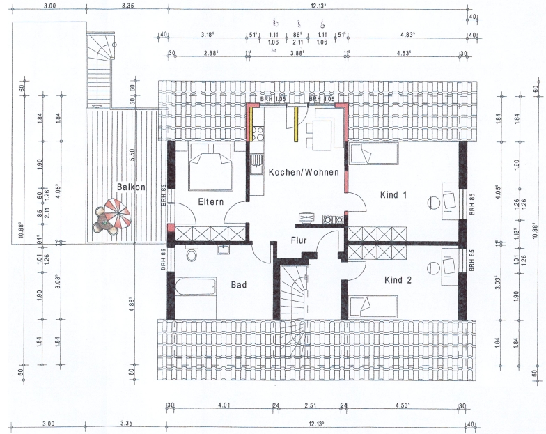
Diese gepflegte 3-Zimmer-Eigentumswohnung befindet sich im Obergeschoss – zugleich Dachgeschoss – eines im Jahr 1999 erbauten, ruhigen 2-Parteien-Hauses. Die Wohnung überzeugt durch ihre durchdachte Raumaufteilung, die helle Atmosphäre und die großzügige Gaube in der Küche, die nachträglich erweitert wurde und für ein besonders offenes Raumgefühl sorgt.
Raumaufteilung und Ausstattung
Die ca. 57 m² große Wohnung verfügt über zwei Schlafzimmer, ein geräumiges Wohnzimmer, eine helle Küche mit Platz für einen Essbereich, eine Diele sowie ein Tageslichtbad mit Fenster, Doppelwaschtisch, Badewanne, Dusche und WC.
Stauraum ist in den Dachschrägen vorhanden, sodass sich jeder Quadratmeter optimal nutzen lässt.
Die moderne Einbauküche ist im Kaufpreis enthalten und bietet alles, was man für den Alltag benötigt.
Eine Gegensprechanlage sorgt für zusätzlichen Komfort.
Außenbereich und Gemeinschaftsräume
Zur Wohnung gehört ein PKW-Außenstellplatz direkt am Haus.
An den Balkon schließt sich eine Außentreppe, welche jedoch vorrangig als Fluchtweg sowie als Zugang zu den Mülltonnen dient.
Ein Kellerraum steht nicht zur Verfügung. Im Untergeschoss befindet sich eine gemeinschaftliche Waschküche.
Gemeinschaft und Eigentumsverhältnisse
Die Wohnung besitzt 37/100 Miteigentumsanteile am Grundstück sowie weitere Anteile am Weg, der zum Haus führt. Das gepflegte Gemeinschaftseigentum und die kleine Eigentümergemeinschaft mit nur zwei Parteien sorgen für eine angenehme und ruhige Wohnatmosphäre.
Lage
Wer in Heisterbacherrott im Rhein-Sieg-Kreis lebt, der entscheidet sich für einen Wohnort zwischen Stadt und Land. In ruhiger Atmosphäre, fernab der hektischen Großstadt und dennoch mit kurzen Wegen. Angebunden sind Sie infrastrukturell direkt an Königswinter-Thomasberg, das mit seiner ausgezeichneten Versorgung alles bietet, was man täglich braucht. Neben Schulen und Kindergärten ist die öffentliche Nahversorgung prima. Heisterbacherrott selber überzeugt unter anderem mit Restaurants, einer Eisdiele, einer Apotheke und einem Ärztezentrum.
Ideal ist insbesondere die Nähe zu Bonn sowie zum Rheintal. Fürs Bummeln und Schlendern bietet sich dann die Königswinterer Altstadt selbst an, das Sie über die L268, die am malerischen Kloster Heisterbach vorbeiführt, schnell erreichen. Darüber hinaus finden Sie übrigens auch zahlreiche Wander- und Radwege durchs herrliche Siebengebirge, das direkt vor Ihrer Haustür liegt. Was wollen Sie mehr?
Ausstattung
Überzeugen Sie sich selbst:
+ sofort bezugsfrei
+ Heizung 2023 erneuert
+ PKW-Außenstellplatz
+ Balkon mit Außentreppe (Fluchtweg / Mülltonnenzugang)
+ Ruhige Lage mit angenehmer Nachbarschaft
+ Großzügige Gaube in der Küche (nachträglich erweitert)
+ Moderne Einbauküche inklusive
+ Tageslichtbad mit Doppelwaschtisch, Wanne, Dusche und WC
+ Gemeinschaftliche Waschküche
– Kein Kellerraum, aber Stauraum in den Dachschrägen
– Zugang zu einem Zimmer aktuell vom Hausflur. Zugang von einem der anderen Zimmer durch Einbau einer Türe denkbar.
Weitere Details
- Zimmer insgesamt: 3
- Anzahl Stellplätze: 1
- Heizungsart: Zentralheizung
- Etage: 1
- Zusatzinformation zur Lage: Heisterbacherrott
- Kaufpreis: 219.000 €
- Anzahl Außenstellplätze: 1
- Balkone: 1
- Befeuerung: Gas
- Baujahr: 1999












