Zu Verkaufen €469.000 - Doppelhaushälfte
Objektbeschreibung
Die gepflegte Immobilie präsentiert sich in einem modernisierten Zustand und wurde in den vergangenen Jahren umfassend aufgewertet.
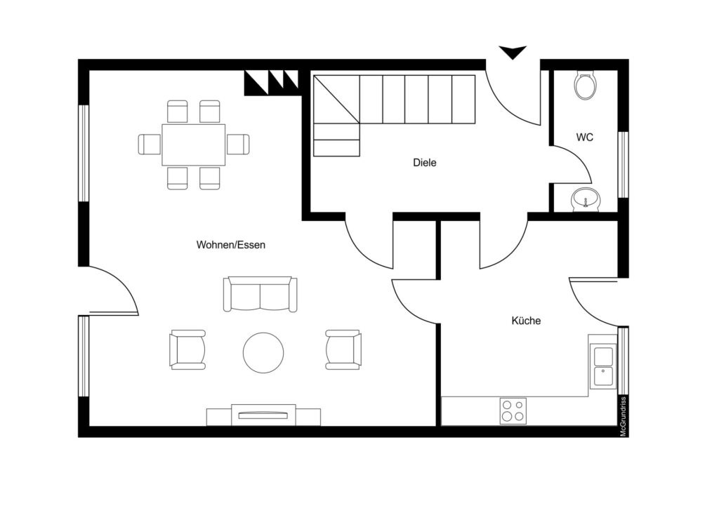
Beim Betreten des Hauses gelangt man in den einladenden Flurbereich, von dem aus alle Räume des Erdgeschosses erreichbar sind. Auf der linken Seite befindet sich ein Gäste-WC mit Tageslichtfenster, während sich geradeaus die Küche öffnet. Die hochwertige Einbauküche aus dem Jahr 2019 ist mit hochwertigen Elektrogeräten der Marken NEFF und Siemens ausgestattet und bietet außerdem direkten Zugang zur Terrasse und in den Garten. Auf der rechten Seite liegt der großzügige Wohn- und Essbereich, der durch einen Kamin und den verlegten Echtholzparkettboden ein gemütliches Wohnambiente schafft.
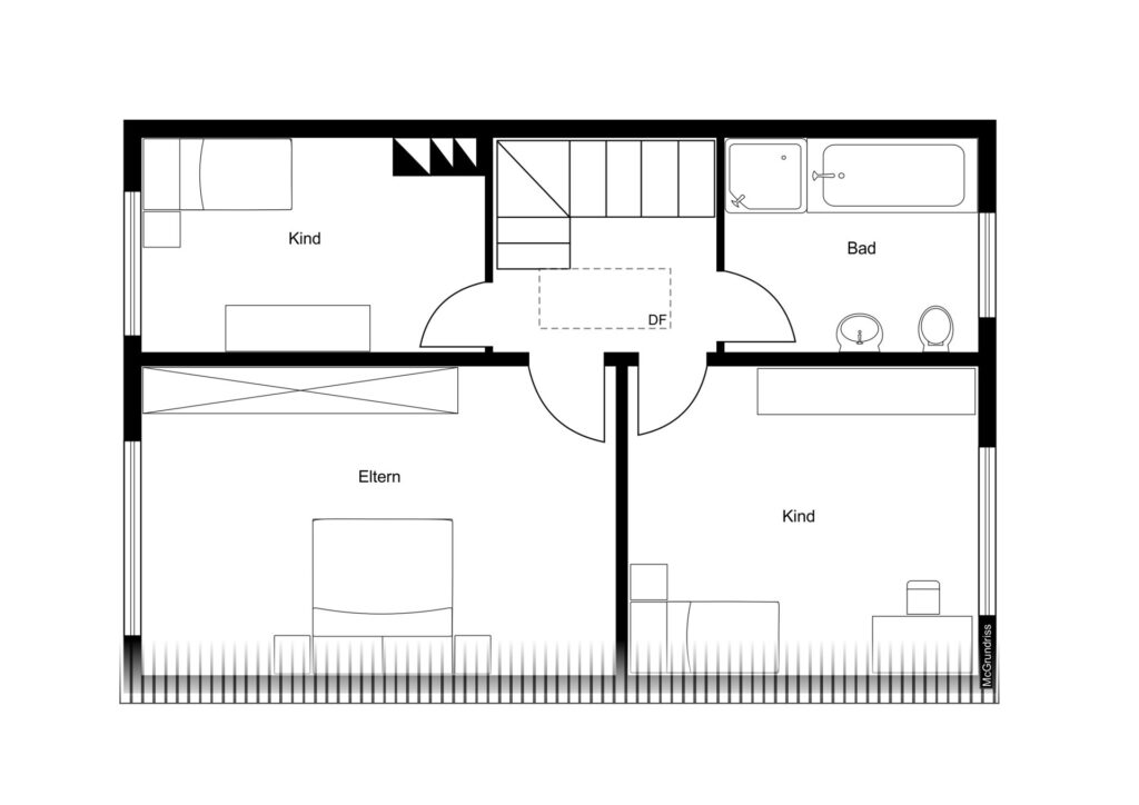
Über die Treppe im Flur gelangt man in das Obergeschoss, das zwei gut geschnittene Schlafzimmer sowie ein weiteres Zimmer umfasst, das aktuell als Büro genutzt wird und sich flexibel als drittes Schlafzimmer eignet. Das modernisierte Tageslichtbad mit Dusche wurde 2023 komplett erneuert, inklusive der Sanitärleitungen.
Die zur Gartenseite ausgerichteten Fenster wurden 2023 mit moderner Wärmeschutzverglasung auf allen Geschossen erneuert, ebenso wie die neue RC2-Sicherheitstür zur Terrasse. Die Fenster auf der anderen Seite des Hauses wurden bereits 2006 ausgetauscht, wodurch auf dieser Gebäudeseite ebenfalls ein durchgängiger Modernisierungsstand über alle Etagen hinweg besteht. Die Leitungen wurden 2020 außerdem vollständig bis unter das Dach verlegt, um einen späteren Dachausbau problemlos zu ermöglichen. Dadurch besteht die Option, zusätzlichen Wohnraum zu schaffen. Die Ölheizung stammt aus dem Jahr 1999. In 2024 wurde jedoch eine neue Ölpumpe verbaut.
Im Rahmen einer umfassenden Renovierung wurde das gesamte Haus 2019 innen neu verspachtelt, gestrichen und mit neuen Bodenbelägen ausgestattet, sodass ein rundum harmonisches und gepflegtes Wohnbild entsteht. In 2020 wurden außerdem die Außenanlagen erneuert und die Einfahrt neu gepflastert.
Lage
Die Immobilie befindet sich in einer ruhigen und gepflegten Wohnlage in Lohmar-Durbusch. Das Umfeld ist geprägt von ansprechender Einfamilienhausbebauung und einer angenehmen Nachbarschaft.
Durch die zurückgesetzte Straßenführung gibt es nur geringes Verkehrsaufkommen, wodurch ein besonders hoher Wohn- und Erholungswert entsteht. Einkaufsmöglichkeiten für den täglichen Bedarf, Schulen, Kindergärten sowie medizinische Einrichtungen sind in kurzer Entfernung mit dem Auto erreichbar. Eine gute Anbindung an den öffentlichen Nahverkehr sowie an die umliegenden Verkehrsachsen sorgt für eine komfortable Erreichbarkeit des Stadtzentrums und der umliegenden Gemeinden.
Die Lage verbindet somit eine ruhige Wohnatmosphäre mit einer zugleich sehr praktischen Infrastruktur.
Ausstattung
– Einzelgarage mit elektrischem und erneuertem Garagentor
– teilweise Echtholzparkett im Erdgeschoss
– nachträglicher Dachgeschossausbau ist möglich
– erneuertes Gäste-WC aus 2019
– erneuerts Badezimmer aus 2020 inkl. Leitungen
– neue Haustür aus 2020
– Fenster aus 2006 und 2023 (teilweise mit Wärmeschutzverglasung)
– 2019 kompletter Innenausbau (inkl. Putz)
– Wallbox ist vorhanden
– 2020 wurden die Außenanlagen und die Einfahrt erneuert
Weitere Details
- Grundstücksfläche: 321 m²
- Zimmer insgesamt: 4
- Anzahl Stellplätze: 3
- Anzahl Etagen: 2,0
- Kaufpreis: 469.000 €
- Courtage: 3,57 % inkl. MwSt.
- Anzahl Außenstellplätze: 2
- Anzahl Garagenstellplätze: 1
- Separate WCs: 1
- Terrassen: 2
- Art der Ausstattung: Standard
- Befeuerung: Öl
- Baujahr: 1985
- Zustand: gepflegt
- Immobilie ist verfügbar ab: nach Vereinbarung



















