Zu Vermieten €2.350 - Reiheneckhaus
Objektbeschreibung
Das moderne Einfamilienhaus liegt in dem gewachsenen und 2023 errichteten Neubaugebiet der ehemaligen -Selbecker Gärten- in dem Ortsteil Selbeck, einem der schönsten und begehrtesten Wohngegenden der Stadt.
Umgeben von Wald und Wiesen finden Sie hier ein attraktives, naturnahes Umfeld.
Die Aufteilung der Räume in diesem tollen Haus stellt sich wie folgt dar:
Untergeschoss:
-Abstellraum
-Technik und Waschküche
-Hobby/Homeoffice
-Erdgeschoss:
-Wohnzimmer mit
-offener (Einbau-)Küche
-Terrasse
-Garten
-Entree
-WC
-Obergeschoss:
-(Schlaf-) Zimmer 1
-(Schlaf-) Zimmer 2
-Dusch- und Wannenbad mit Tageslicht
-Flur
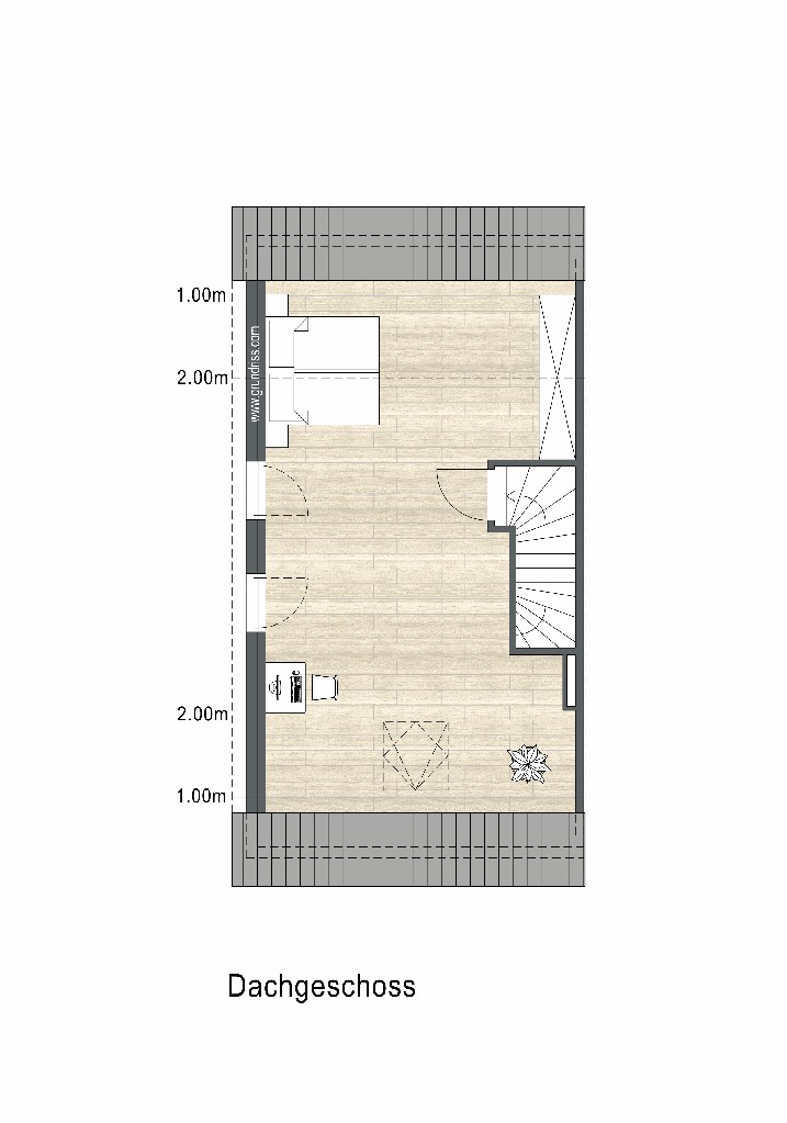
Dachgeschoss:
-Studio (Schlaf-) Zimmer 3
Lage
Hier wohnen Sie nur ein paar Gehminuten von der schönsten Natur entfernt. Wander-, Rad- und Reitwege lassen keine Erholungswünsche offen.
Geschäfte des täglichen Bedarfs wie Supermärkte, Bäckereien, Ärzte und Apotheken und diverse Gastronomienagebote sind fußläufig schnell erreichbar. Im gemütlichen -Dorf Saarn-, ebenso wie auf der -Saarner Kuppe- befindet sich ebenfalls alles für den täglichen Bedarf, wie auch Kindergärten und Schulen. Golf- und Tennisplätze sind ebenfalls fußläufig erreichbar.
In wenigen Autominuten erreichen Sie das Autobahnkreuz Breitscheid (A52, A3/A524/A40), damit ist die gesamte Region schnell erreichbar. Zum Flughafen Düsseldorf sind es nur ca. 10 Minuten mit dem PKW. Dies macht den Standort ideal für Berufstätige und Pendler mit überregionalem Arbeitsplatz.
Ausstattung
Insgesamt wurden in hoher Bauqualität von der Firma Ten Brinke im Jahre 2023 vierzig Einfamilienhäuser errichtet, die nahezu alle an Eigennutzer mit Kindern veräußert wurden, sodass sich ein sicheres, kindgerechtes Umfeld für Familien mit Kindern gebildet hat, in dem Kinder vor dem Haus bzw. in den Gärten und auf den Wiesen spielen können und die Eltern entspannt auf der Terrasse/ im Garten den Tag genießen oder in Ruhe ihrer (Homeoffice-) Arbeit nachgehen können.
Über wenige Stufen erreichen Sie den Eingangsbereich im Erdgeschoss mit Garderobe und Gäste-WC. Der Flur bringt Sie in den geräumigen Wohn-Essbereich mit angrenzender, luxuriöser Einbau-Küche, so dass dieser Anschaffungsfaktor für den kommenden Mieter wegfällt. Vom großzügigen Wohnzimmer haben Sie Zutritt zur überdachten Terrasse und in den Garten. Dieses schöne Fleckchen Erde lädt zum Spielen, Toben und Relaxen ein.
Über die hochwertige Stahlsystemtreppe mit komplett spiegelbildlichem Treppenlauf gelangen Sie in I. Obergeschoss. Hier erwarten Sie zwei Schlaf-/Kinderzimmer und ein großes, luxuriöses Wannen-Duschbad mit Tageslicht.
Ein Stockwerk höher, im Dachgeschoss, befindet sich ein großes Studio für die größeren Kinder oder ein Rückzugsort für die Eltern.
Hervorzuheben sind sicherlich noch die überwiegend bodentiefen Fenster, die für viel Helligkeit und ein angenehmes Wohngefühl sorgen.
Im Kellergeschoss des Hauses befindet sich der Hauswirtschaftsraum mit dem Waschmaschinenanschluss und der Technikraum, ein Vorratsraum und ein Hobbykeller, jeder Raum mit außergewöhnlicher Deckenhöhe, die auch ein Arbeitszimmer oder Spielzimmer möglich macht.
Ihr Auto parken Sie bequem neben dem Haus auf Ihrem freien Stellplatz auf Ihrem Grundstück vor der Garage oder aber direkt in der Garage, die über einen elektronischen Garagentorantrieb mit Fernbedienung sowie eine Walboxvorbereitung verfügt.
Alle Fußböden in den Wohn- und Schlafräumen sind mit hochwertigem Klick-Vinylboden in Parkett-Optik versehen. Die Fußbodenheizungen im Erdgeschoss sorgen für angenehme Wohlfühlwärme.
Die Fenster sind mit elektrischen Rollladen versehen.
Sonstiges
Hinweis:
Diese Unterlagen sind für die Vermietung und bei einem finalen Interesse der Anmietung wichtig:
– Selbstauskunft mit Angaben zur Person.
– Einkommensnachweis (z. B. letzte Gehaltsabrechnung, Arbeitsvertrag, letzter Steuerbescheid bei Selbstständigen)
– Schufa-Auskunft
– Mietschuldenfreiheitsbescheinigung und ggfs. Mietbürgschaft.
Die monatiche Miete für dieses selten angebotene Haus im TOP-Zustand beträgt:
Grundmiete: EUR 2.350,00
Garage inkl. Stellplatz: EUR 100,00
Betriebskosten-VZ: EUR 150,00
Heizkosten-VZ: EUR 200,00
Gesamt: EUR 2.900,00
und einer Kaution i.H.v. EUR 7.000,00
Strom- und Internet meldet der Mieter auf eigene Rechnung an und bezahlt diese direkt an den Anbieter.
Wieviel Miete können SIE sich leisten?
Es gibt die Faustregel: 30 Prozent. So hoch soll der Mietanteil sein, damit alle anderen Lebenshaltungskosten abgedeckt sind (Quellen: Immobilienscout 24 und Immonet) was vorliegend ein Netto-Haushaltseinkommen i.H.v. rd. EUR 9.000,00 (neuntausend) pro Monat mit sich bringen würde.
Für Interessenten, deren Miete über das Jobcenter gezahlt wird und die stets herzlich willkommen sind, wird vermietereits auf die aktuellen Mietobergrenzen der Stadt Mülheim an der Ruhr wie folgt hingewiesen:
Haushalt angemessene angemessene
Wohnungsgröße Bruttokaltmiete
1 Person 50m² 440,50 EUR
2 Personen 65m² 566,15 EUR
3 Personen 80m² 693,60 EUR
4 Person 95m² 814,15 EUR
5 Personen 110m² 950,40 EUR
Quelle: Jobcenter Mülheim an der Ruhrt · zuletzt geprüft: 10/2025 (gültig seit 10/2024)
Die Grundmiete für diese Immobilie beträgt monatlich z.B. bei 5 Personen EUR 2.350,00 zzgl. EUR 150,00 Betriebskosten-VZ. Der Vermieter dankt für die Beachtung!
Weitere Details
- Grundstücksfläche: 234 m²
- Zimmer insgesamt: 4
- Anzahl Stellplätze: 2
- Heizungsart: Zentralheizung
- Anzahl Etagen: 2,0
- Kaltmiete: 2.350 €
- monatl. Betriebs-/Nebenkosten: 250 €
- monatl. Heizkosten: 200 €
- Kaution: 7.000 €
- Anzahl Außenstellplätze: 1
- Anzahl Garagenstellplätze: 1
- Stellplatzmiete (Garage): 100 €
- Nutzfläche: 51 m²
- Art der Ausstattung: gehoben
- Befeuerung: Gas
- Badausstattung: Dusche, Badewanne, Fenster im Badezimmer
- Küche: Offene Küche
- Stellplatzart: Garage, Freiplatz
- Baujahr: 2023
- Zustand: neuwertig
- Immobilie ist verfügbar ab: 15.12.2025











