Zu Verkaufen €479.000 - Reihenhaus
Objektbeschreibung
Bauweise: Beidseitig angebaut, Split-Level-Gebäude (versetzte Ebenen)
Gebäudebreite: 11,00 m
Baujahr: 1965 Dacherweiterung 1990
sehr guter Pflegezustand, teilsaniert
Energieausweis: Liegt zur Besichtigung vor.
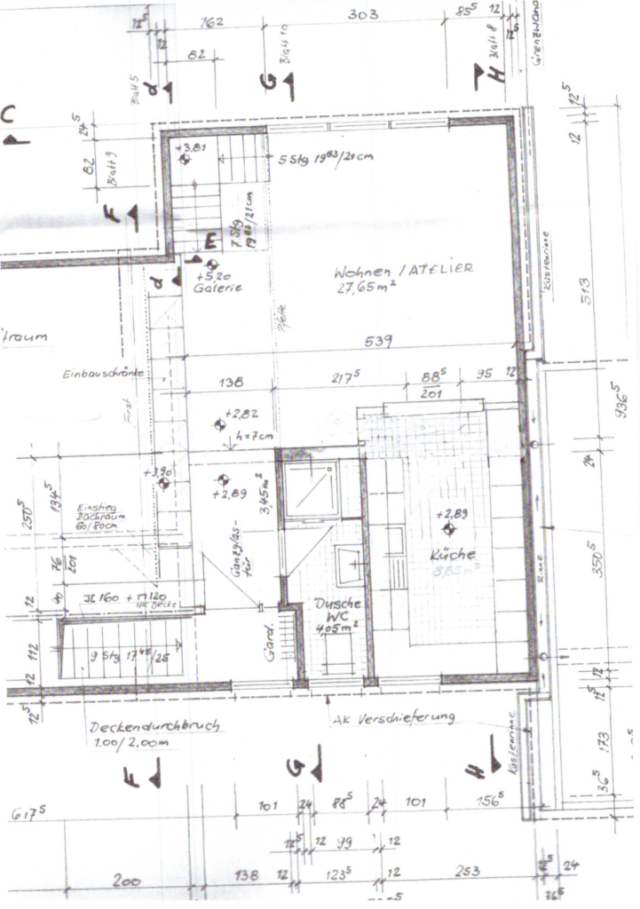
Aufteilung:
Souterrain mit 2 Kinderzimmern und Spielterrasse, Abstellräume und Heizung /Waschküche
Eingangsbereich mit Diele, G-WC, Garderobe, Wohnzimmer und Küche und der angebaute, neuere Wintergarten (ursprüngliche Terrasse ist mit Genehmigung nachträglich unterkellert worden)
Mittelgeschoss: Flurbereich, Elternschlafraum und Wannenbad
Dachgeschoss 1990: Dachaufstockung
Großzügige Atelier-Einlieger Wohnung:
Atelierraum, Küche, Duschbad und Galerie Empore über integrierte Treppe
Das Gebäude ist in Massivbauweise und Stahlbetondecken errichtet worden. Die Fassaden sind mit Naturschieferplatten verblendet.
Warmwasserversorgung und Beheizung über Fernwärme.
Wohnfläche ca. 141 m²
Wintergarten ca. 20 m²
Terrassenanteil 25% ca. 5m²
Fläche Insgesamt 166 m²
zzgl. zu Wohnzwecken genutzte Fläche im Untergeschoss ca. 20 m zzgl. Nutzflächen im Kellergeschoss.
Zu Wohnzwecken genutzte Fläche insgesamt mit Galerie im Dachgeschoss ca. 190 m²
Gesamteindruck: Ein Wohlfühlhaus für die große Familie mit Einzelhauscharakter in ruhiger Wohnlage.
Eine Modernisierung nach eigenem, individuellen Geschmack bietet sich an.
Lage
Diese Wohnlage zeichnet sich durch eine hervorzuhebende Infrastruktur aus.
Das Gebäude mit extravaganten Erscheinungsbild liegt am Ende einer Sackgasse – folglich sehr ruhig.
Diese Liegenschaft mit der Gemarkung Urdenbach grenzt an den „Altrhein-Auenlandschaften“ (Naturliebhaber).
Urdenbach, Benrath, Langenfeld, Monheim und Hilden – auch über das öffentliche Verkehrsnetz gut erreichbar.
Gegenüber die Grundschule – auch weiterführende Schulen gut erreichbar. Weiterhin gute Einkaufsmöglichkeiten und sehr gute Verkehrsanbindung.
Ausstattung
Das Gebäude hinterlässt trotz seines Alters einen gepflegten Eindruck. Die Sanitäranlagen teilweise erneuert – 3 Bäder (1 Wannenbad /Eltern und 2 Duschbäder).
Den angebauten Wintergarten (Kunststofffenster-Schiebeelemente mit Isolierverglasung) könnte man über den Wohnraumheizkörper erweitern und eventuell durch einen Heizofen (Pellet bzw. Holz) auch im Winter wohnbar gestalten. Garten in Sonnenlage mit befestigtem Holzgartenzaun.
Sonstiges
Kaufpreis: EUR 479.000,- inkl. Garage
– Im Alleinauftrag –
Haftung: Wir bemühen uns alle Angaben so vollständig wie möglich zu machen. Da wir uns hierbei auf die Angaben der jeweiligen Verkäufer verlassen müssen, können wir keine persönliche Haftung übernehmen.
Courtage: Die anteilige, für den Käufer anfallende, Nachweis- bzw. Vermittlungsgebühr beträgt 3,57 % inkl. der gesetzlichen MwSt. des Kaufpreises.
Finanzierung: Durch laufende Zusammenarbeit mit namenhaften Finanzierungsinstituten sind wir stets in der Lage, Ihnen eine auf Ihre persönlichen Verhältnisse abgestimmte Finanzierung zu ermöglichen. Für die zusätzliche Finanzierungsbearbeitung wird von uns keine Kostenrechnung vorgenommen.
Weitere Details
- Grundstücksfläche: 352 m²
- Zimmer insgesamt: 5
- Heizungsart: Zentralheizung
- Anzahl Etagen: 3,0
- Zusatzinformation zur Lage: Garath
- Kaufpreis: 479.000 €
- Courtage: 3.57 %
- Anzahl Garagenstellplätze: 1
- Nutzfläche: 50 m²
- Terrassen: 2
- Art der Ausstattung: Standard
- Badausstattung: Dusche, Badewanne
- Stellplatzart: Garage
- Baujahr: 1965
- Zustand: gepflegt
- Letzte Modernisierung: 1990
- Immobilie ist verfügbar ab: nach Absprache






