Zu Verkaufen €898.000 - Mehrfamilienhaus
Objektbeschreibung
Dieses gepflegte Mehrfamilienhaus mit insgesamt sechs Wohneinheiten und einem bereits ausgebauten Dachgeschoss bietet eine attraktive Kombination aus solider Bausubstanz, modernisierter Ausstattung und weiterem Entwicklungspotenzial. Der Dachgeschossausbau ist derzeit nicht genehmigt und müsste im Rahmen einer Nachgenehmigung formalisiert werden.
Die aktuelle Wohnfläche der bereits genehmigten Wohneinheiten beträgt ca. 307 m² und verteilt sich auf das Erdgeschoss, das 1. und 2. Obergeschoss. Das bereits ausgebaute Dachgeschoss ergänzt diese Wohnfläche um ca. 65 m². Die Wohnungen wurden überwiegend in den 1990er Jahren renoviert. Dabei wurden insbesondere die Bäder und Fenster modernisiert. Verbaut wurden pflegeleichte Kunststoff-Fenster mit Doppelverglasung. Die 3-Zimmer-Wohnung im Erdgeschoss erhielt im Jahr 2017 ein neues Bad.
Die Jahreskaltmiete der genehmigten Wohneinheiten des Objekts liegt bei ca. 42.480,00 €, wobei Erhöhungspotenzial besteht. Unter Berücksichtigung der nicht genehmigten Dachgeschosswohnung liegt die Jahreskaltmiete bei 49.800,00 €.
Sowohl das Dach als auch die Fassade zur Garagenseite wurden bereits in den 1990er Jahren wärmegedämmt und tragen zur Energieeffizienz des Gebäudes bei. Der überwiegende Teil der Wohnungen – mit Ausnahme des Apartments im Erdgeschoss und der Dachgeschossfläche – verfügt über eigene Loggien und damit über angenehme Außenbereiche mit zusätzlichem Wohnkomfort. Die Bodenbeläge bestehen überwiegend aus pflegeleichten Fliesen.
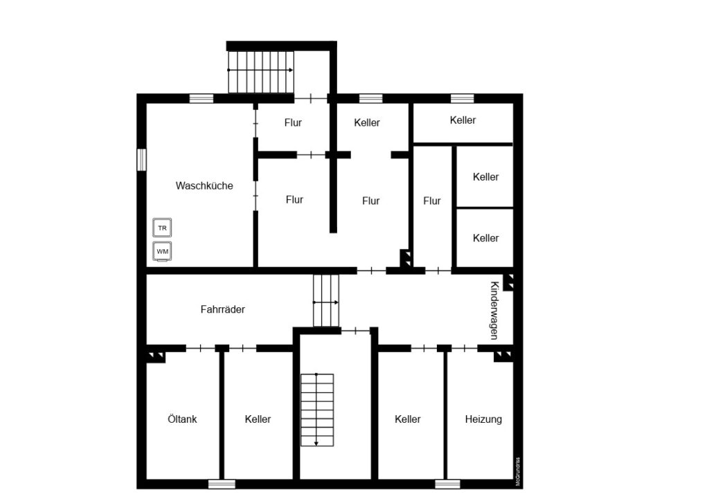
Beheizt wird das Gebäude über eine zentrale Ölheizung. Im September 2023 wurde eine moderne, energieeffiziente Ölbrennwertheizung eingebaut, die den aktuellen Anforderungen an sparsames und nachhaltiges Heizen gerecht wird. Ein gepflegter Garten im rückwärtigen Bereich steht den Bewohnern zur gemeinschaftlichen Nutzung zur Verfügung.
Nach Aussage der Stadt Rösrath, könnte von der Rückseite aus auf dem Grundstück Garagen, Stellplätze oder ein Anbau an das bestehende Wohnhaus errichtet werden.
Diese Immobilie eignet sich sowohl zur Kapitalanlage als auch zur teilweisen Selbstnutzung mit langfristiger Perspektive.
Lage
Die Immobilie liegt in einer ruhigen Wohnstraße im beliebten Rösrather Stadtteil Zentrum. Die Umgebung zeichnet sich durch eine gewachsene Nachbarschaft, viel Grün und eine angenehme Wohnatmosphäre aus.
In wenigen Minuten erreicht man Einkaufsmöglichkeiten, Schulen, Kindergärten sowie Ärzte und Apotheken Die Versorgung des täglichen Bedarfs ist damit bequem gesichert. Darunter zählen u.a. ein Obi und ein Aldi, welche direkt beieinander liegen. Der nahegelegene Bahnhof Rösrath bietet eine direkte Regionalbahnverbindung nach Köln, sodass auch Berufspendler von einer schnellen Anbindung profitieren. Die Autobahnen A3 und A4 sind ebenfalls gut erreichbar. Naturfreunde finden mit dem Königsforst und der Wahner Heide zwei weitläufige Naherholungsgebiete direkt vor der Haustür.
Direkt auf der Rückseite des Hauses befindet sich die Burggasse. Diese bietet sich an, um weitere Parkmöglichkeiten zu finden.
Die Lage vereint naturnahes Wohnen mit hervorragender Infrastruktur und Verkehrsanbindung. Ideal für Familien, Ruhesuchende oder Kapitalanleger.
Ausstattung
– nachträgliche Dach- und Fassadendämmung
– Heizung aus 2023
– eine Garage
– Dachgeschossnutzung durch Nachgenehmigung
– Garten
– Loggien
Weitere Details
- Grundstücksfläche: 553 m²
- Heizungsart: Zentralheizung
- Anzahl Etagen: 4,0
- Kaufpreis: 898.000 €
- Courtage: 3,57 % inkl. MwSt.
- X-fache (Kaufpreis bez. auf Jahresmiete): 18.03
- Aktuelle Mieteinnahmen: 49.800 €
- Nutzfläche: 80 m²
- Balkone: 5
- Vermietbare Fläche: 372 m²
- Wohneinheiten: 7
- Art der Ausstattung: Standard
- Befeuerung: Öl
- Baujahr: 1965
















